CARGO
Micro ufficio per industria
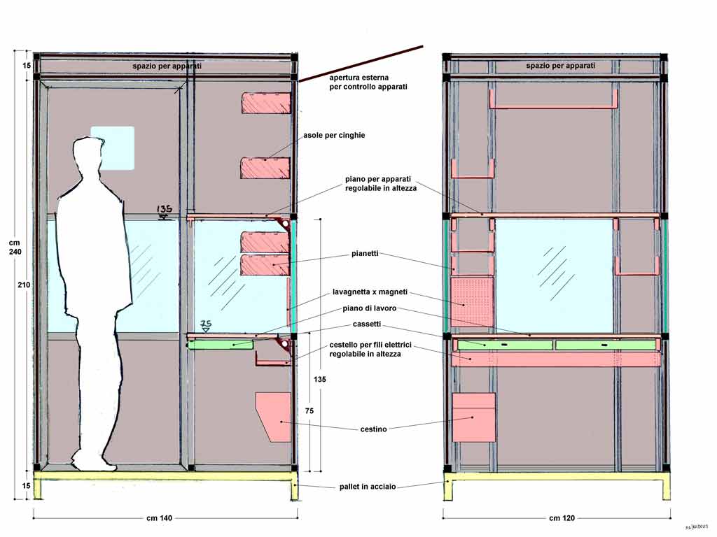
Workstation pallettizzata: CARGO
Workstation pallettizzata o casetta in legno multiuso
1
2
Siamo spiacenti, la sua ricerca non ha prodotto alcun risultato.











